No items found.

53 Joseph Street, Flat Bush

,

Flat Bush

,

NZ

Land with Approved Building Consent!

0
0
0
0
Are you looking for a hassle-free build in one of Auckland's most sought-after suburbs? Look no further!

Highlights:
- Land with approved building consent, ready to be constructed anytime.
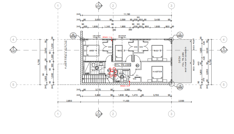
- Modern two-level home design.
- 4 spacious bedrooms including a master suite.
- 2.5 stylish bathrooms.
- Single internal-access garage.
- Approx. 153m² floor area - smart layout for modern living.

Why Flat Bush?

This thriving neighbourhood offers top-rated schools, Ormiston Town Centre, parks, and easy motorway access. It's a prime location for families, professionals, or investors.

Whether you're ready to build your dream home or expand your property portfolio, this is a golden opportunity to secure your future in a fast-growing area.

Call me today!
No items found.

Asking Price: $510,000

Asking Price: $510,000

SOLD
LEASED

Listing ID:

30565535

No items found.
No items found.

Location

No items found.